 
			 
				Per garantirti che la visita a questo immobile sia mirata alle tue esigenze specifiche, ti offriamo l'opportunità di visionarlo virtualmente tramite un virtual tour.
Non perdere l'opportunità di visionare subito questa soluzione ovunque ti trovi!
Formia, nella località di San Pietro, in Via degli Ulivi, proponiamo in vendita un appartamento, in ottimo stato interno, ubicato in una palazzina recentemente ristrutturata con una cantina di proprietà.
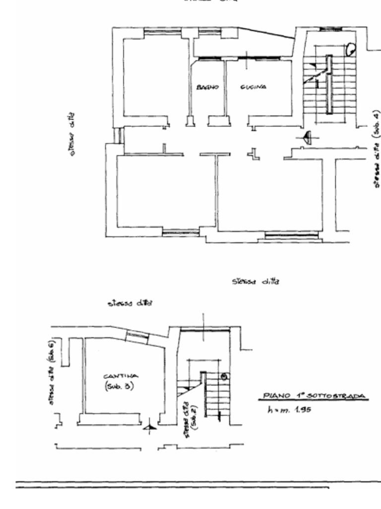
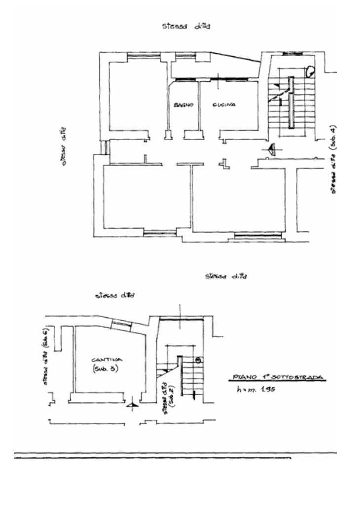
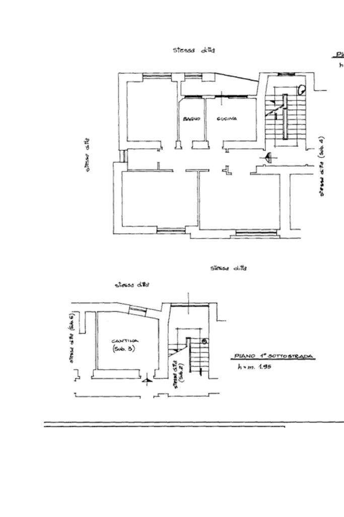
L'appartamento di 70 mq. interni calpestabili, è composto da un ingresso nel soggiorno luminoso e cucina abitabile con uscita diretta sul balcone.
Proseguendo nel disimpegno accediamo alla zona notte che include due camere di cui una matrimoniale e una cameretta, un bagno finestrato con box doccia e un pratico ripostiglio.
Inoltre, al piano S/1 troviamo una cantina di 10 mq.
L'immobile si trova a soli 500 mt. dalla spiaggia e a 2,2 km dal centro di Formia, comodo per accedere ai principali servizi e mezzi di trasporto.
Per maggiori informazioni o per prenotare una visita, contattaci subito. Approfitta del tour virtuale per vedere subito l'immobile!
Ti interessa visionare l'immobile?