Quadrilocale in vendita

Formia, Via Quinto Aurelio Simmaco - San Giulio Formia
€ 220.000
4 locali 4 locali
131 Mq 131 Mq
2 bagni 2 bagni

Quadrilocale in vendita

Formia, Via Quinto Aurelio Simmaco - San Giulio Formia

Descrizione annuncio

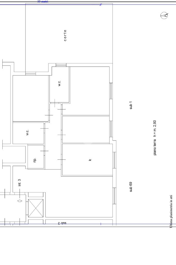
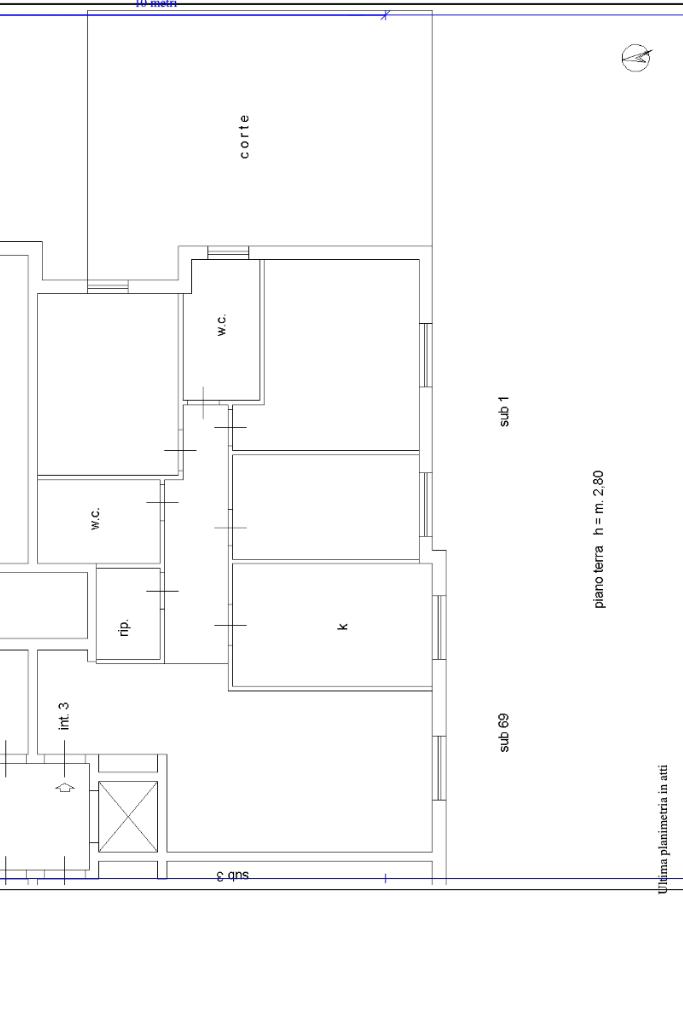
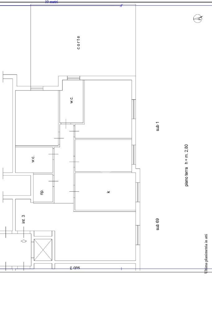
Formia – Località San Giulio, Via Quinto Aurelio Simmaco
Appartamento ristrutturato con corte privata — in zona servita

In una zona ben servita da scuole, attività commerciali e servizi di prima necessità, proponiamo in vendita un appartamento ristrutturato posto al piano terra, dotato di doppio ingresso, uno condominiale e uno privato.

L’ingresso conduce a un ampio soggiorno con angolo cottura, con uscita diretta su una corte pavimentata privata di circa 50 mq, uno spazio esterno funzionale e riservato, utilizzabile in diversi momenti della giornata.

Un corridoio accompagna alla zona notte, composta da tre camere da letto: una matrimoniale e due camerette.
Completano la proprietà due bagni, di cui uno cieco e uno finestrato con box doccia.

Gli ambienti sono climatizzati e dotati di infissi in doppio vetro, zanzariere e porta blindata, caratteristiche che contribuiscono al comfort e alla gestione quotidiana dell’abitazione.

A servizio dell’immobile sono presenti una cantina e un garage, elementi che aumentano la praticità.

L’appartamento è attualmente locato con regolare contratto con scadenza 2029, risultando una soluzione interessante sia come investimento, sia in ottica futura come prima casa o casa vacanza.

È disponibile la possibilità di effettuare una prima visita virtuale e di ricevere maggiori informazioni contattandoci.

Mostra tutto

Nelle vicinanze

Trasporto pubblico Trasporto pubblico
Formia-Gaeta
Formia-Gaeta
1,6 Km
Trasporto pubblico
1,1 Km
Formia
1,4 Km
Ricariche auto elettriche Ricariche auto elettriche
Formia De Gasperi | EnelX
190 m
Largo Paone
1,4 Km
Molo Amerigo Vespucci
1,8 Km
Scuole Scuole
Scuola media statale vitruvio pollione
1,0 Km
Scuole
1,7 Km
Istituto Magistrale
2,4 Km
Farmacia Farmacia
Farmacia S. Anna
1,3 Km
Farmacia
1,5 Km
Ospedali Ospedali
Dono Svizzero
570 m
Pronto Soccorso Ospedale Dono Svizzero
650 m
Supermercati Supermercati
Supermercati
1,1 Km
IN's
1,2 Km
Conad
2,2 Km
Negozi Negozi
Merolla Calzature
830 m
Vittoria
930 m
Panificio D'Urso
940 m
Cristiano intimo
1,1 Km
Zoo Shop
1,1 Km
Bar Bar
La Vinicola Vino
760 m
Green Cafe
1,1 Km
Pizzeria S. Giovanni
1,2 Km
Bar
1,2 Km
Bar Old Greko
1,2 Km
Ristoranti Ristoranti
Il Tartufo
890 m
Taverna di Mola
930 m
Tosti Panini Gourmet
1,1 Km
Il Magazzino
1,1 Km
il gatto e la volpe
1,2 Km
Mostra tutto

Caratteristiche

Rif.:
61168240
Piano:
1 di 5 (Piano terra)
Box:
1
Terrazzi:
2
Camere da letto:
3
Arredamento:
Assente
Mostra tutto
Prezzo Prezzo
€ 220.000
Rata mutuo Rata mutuo
€ 1.037 / mese
Spese annue Spese annue
€ 400
Proponi il tuo prezzoProponi il tuo prezzo

Classe Energetica

E
E
E
E
E
E
E
E
E
EP globale non rinnovabile:
400.00 kW h/m² anno
EP globale rinnovabile:
123.00 kW h/m² anno
EP invernale del fabbricato:
EP estiva del fabbricato:
Anno di costruzione:
1985
Riscaldamento:
Autonomo
Tipo impianto:
A radiatori
Tipo alimentazione:
Metano

Ti interessa visionare l'immobile?

Fissa un appuntamento  Fissa un appuntamento

Richiedi informazioni

Clicca su Leggi per aprire l'informativa
* Questi campi sono obbligatori

Calcola il tuo mutuo

Semplice e senza impegno
Anticipo

( % )
Mutuo

( % )

pochi semplici passi

inserisci i tuoi dati
Questionario completato
Grazie per aver richiesto un appuntamento senza impegno con un nostro Consulente del Credito e Assicurativo.

Hai inserito correttamente tutti i dati necessari e a breve riceverai una e-mail con un link da convalidare per inviare i tuoi dati.
Affiliato
Aurea Formia Srl
Via Appia Lato Napoli, 117 04023 Formia (LT)

Il nostro staff


  • Alessia Caputo
    Coordinatrice

  • Maria Giulia De Lucia
    Coordinatrice

  • Daniele De Meo
    Collaboratore

  • Elisabetta Marconi
    Coordinatrice

  • Mario Mezzanino
    Responsabile

  • Nicola Mezzanino
    Responsabile

  • Manuel Raponi
    Collaboratore

  • Francesco Viola
    Collaboratore

  • Antonio Rotondo
    Affiliato
Via Appia Lato Napoli, 117 04023 Formia (LT)
Zona: Formia
Mostra su mappa
Orari: Orari: lunedì - venerdì 9:00/13:00 - 15:00/19:00; sabato 9:00/17:00; domenica su appuntamento 9:30/13:00
Affiliato
Aurea Formia Srl
Via Appia Lato Napoli, 117 04023 Formia (LT)

2026 Tecnocasa Franchising S.p.A. - P. IVA 08365160152 - Via Monte Bianco 60/A 20089 Rozzano (MI). Ogni agenzia ha un proprio titolare ed è autonoma. Privacy policy | Policy utilizzo | Cookie policy