Quadrilocale in vendita

Formia, Via Franco Angiolini - San Pietro - San Giulio
€ 300.000
4 locali 4 locali
126 Mq 126 Mq
2 bagni 2 bagni

Quadrilocale in vendita

Formia, Via Franco Angiolini - San Pietro - San Giulio

Descrizione annuncio

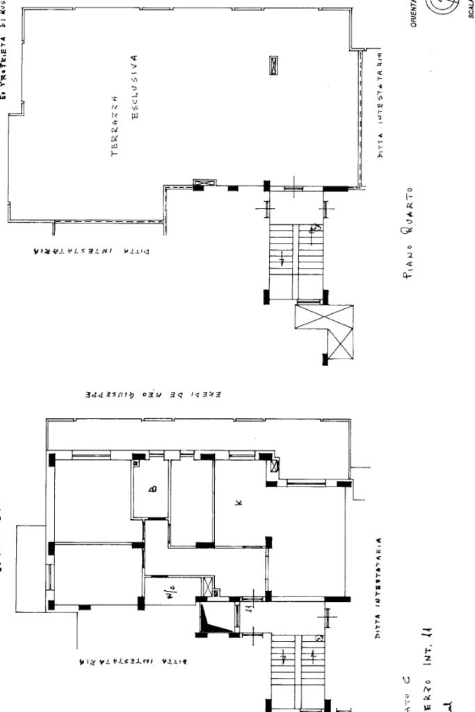
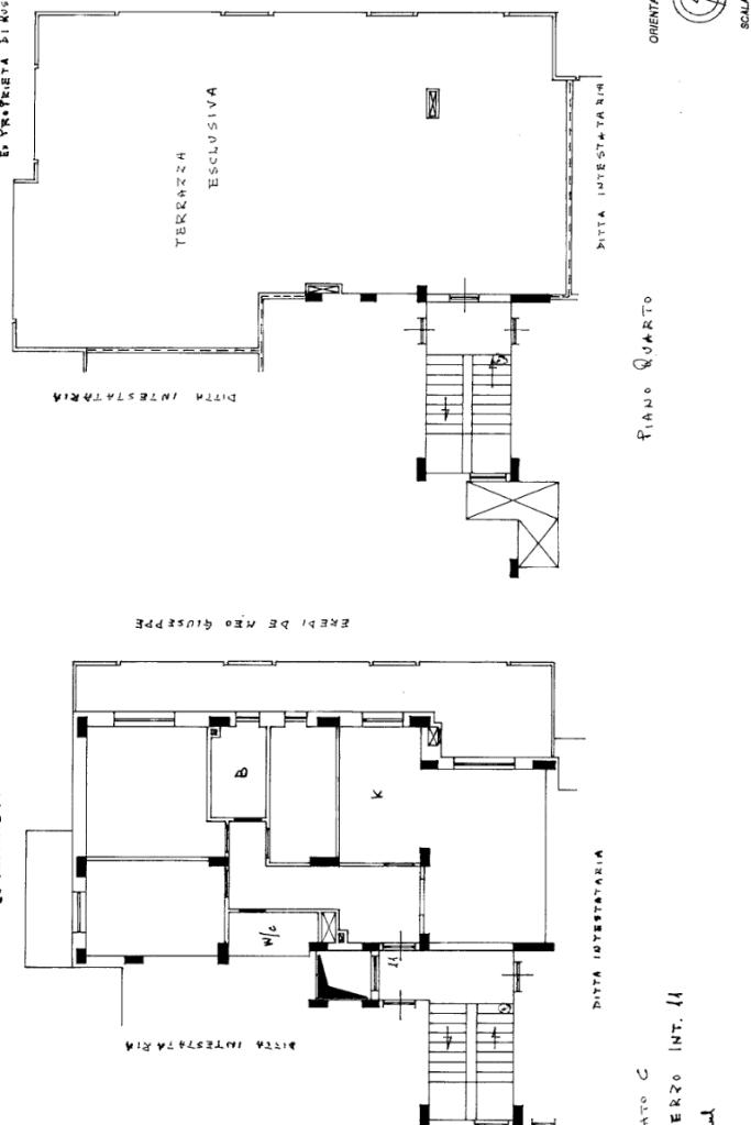
Formia – Quartiere San Pietro Parco Orchidea
Soluzione con ampio terrazzo di proprietà in contesto signorile

Nel quartiere San Pietro, all’interno del Parco Orchidea, contesto residenziale signorile, curato e riservato, proponiamo in vendita una soluzione abitativa ideale per chi desidera vivere in un ambiente tranquillo e ben organizzato.

L’immobile presenta una distribuzione interna funzionale e ben equilibrata: soggiorno, cucina abitabile, tre camere da letto — di cui una matrimoniale e due camerette — e doppi servizi, spazi pensati per una quotidianità comoda e pratica.

La casa è dotata di una doppia balconata con esposizione ovest–nord, che garantisce una buona luminosità naturale e un piacevole ricambio d’aria. Elemento di grande valore è il terrazzo di proprietà di circa 145 mq, situato al piano superiore, uno spazio esterno ampio e riservato, ideale da vivere e personalizzare in base alle proprie esigenze.

Completano la proprietà un deposito di circa 16 mq e un posto auto condominiale assegnato, che aggiungono funzionalità e comfort alla soluzione.

Una proposta indicata per chi è alla ricerca di una casa in un contesto ben tenuto, con spazi esterni importanti e una distribuzione interna razionale, a pochi minuti dai principali servizi della zona.

È possibile effettuare una visita virtuale o ricevere maggiori informazioni contattandoci.

Mostra tutto

Nelle vicinanze

Trasporto pubblico Trasporto pubblico
Formia-Gaeta
Formia-Gaeta
2,7 Km
Trasporto pubblico
310 m
Formia
2,5 Km
Ricariche auto elettriche Ricariche auto elettriche
Formia De Gasperi | EnelX
1,1 Km
Largo Paone
2,4 Km
Molo Amerigo Vespucci
2,8 Km
Scuole Scuole
Scuola media statale vitruvio pollione
2,1 Km
Scuole
2,8 Km
Farmacia Farmacia
Farmacia S. Anna
2,4 Km
Farmacia
2,6 Km
Ospedali Ospedali
Dono Svizzero
1,7 Km
Pronto Soccorso Ospedale Dono Svizzero
1,8 Km
Supermercati Supermercati
Supermercati
250 m
IN's
370 m
supermercati d'ambrosio
2,0 Km
iN's Mercato
2,8 Km
Panorama
2,9 Km
Negozi Negozi
Pasticceria Scotti
290 m
Zoo Shop
310 m
Cristiano intimo
310 m
Panificio D'Urso
380 m
Vittoria
380 m
Bar Bar
Bar Old Greko
280 m
La Vinicola Vino
530 m
Green Cafe
2,1 Km
Pizzeria S. Giovanni
2,3 Km
Bar
2,3 Km
Ristoranti Ristoranti
Il Tartufo
420 m
Pizzeria 3C "comm c.... coce"
1,7 Km
Pensione Campese
1,8 Km
Taverna di Mola
2,0 Km
Il Magazzino
2,2 Km
Mostra tutto

Caratteristiche

Rif.:
61179528
Piano:
3 di 4 con ascensore (Piano alto)
Box:
1
Posti auto:
1
Balconi:
2
Terrazzi:
1
Mostra tutto
Prezzo Prezzo
€ 300.000
Rata mutuo Rata mutuo
€ 1.425 / mese
Spese annue Spese annue
€ 1.320
Proponi il tuo prezzoProponi il tuo prezzo

Classe Energetica

F
F
F
F
F
F
F
F
F
EP globale non rinnovabile:
400.00 kW h/m² anno
EP invernale del fabbricato:
EP estiva del fabbricato:
Anno di costruzione:
1995
Riscaldamento:
Autonomo
Tipo impianto:
A radiatori
Tipo alimentazione:
Metano

Ti interessa visionare l'immobile?

Fissa un appuntamento  Fissa un appuntamento

Richiedi informazioni

Clicca su Leggi per aprire l'informativa
* Questi campi sono obbligatori

Calcola il tuo mutuo

Semplice e senza impegno
Anticipo

( % )
Mutuo

( % )

pochi semplici passi

inserisci i tuoi dati
Questionario completato
Grazie per aver richiesto un appuntamento senza impegno con un nostro Consulente del Credito e Assicurativo.

Hai inserito correttamente tutti i dati necessari e a breve riceverai una e-mail con un link da convalidare per inviare i tuoi dati.
Affiliato
Aurea Formia Srl
Via Appia Lato Napoli, 117 04023 Formia (LT)

Il nostro staff


  • Alessia Caputo
    Coordinatrice

  • Maria Giulia De Lucia
    Coordinatrice

  • Daniele De Meo
    Collaboratore

  • Elisabetta Marconi
    Coordinatrice

  • Mario Mezzanino
    Responsabile

  • Nicola Mezzanino
    Responsabile

  • Manuel Raponi
    Collaboratore

  • Francesco Viola
    Collaboratore

  • Antonio Rotondo
    Affiliato
Via Appia Lato Napoli, 117 04023 Formia (LT)
Zona: Formia
Mostra su mappa
Orari: Orari: lunedì - venerdì 9:00/13:00 - 15:00/19:00; sabato 9:00/17:00; domenica su appuntamento 9:30/13:00
Affiliato
Aurea Formia Srl
Via Appia Lato Napoli, 117 04023 Formia (LT)

2026 Tecnocasa Franchising S.p.A. - P. IVA 08365160152 - Via Monte Bianco 60/A 20089 Rozzano (MI). Ogni agenzia ha un proprio titolare ed è autonoma. Privacy policy | Policy utilizzo | Cookie policy