 
			 
				Per garantirti che la visita a questo immobile sia mirata alle tue esigenze specifiche, ti offriamo l'opportunità di visionarlo virtualmente tramite un virtual tour. Non perdere l'opportunità di visionare subito questa soluzione ovunque ti trovi!
Formia, loc. Gianola, in Via Jakob Philip Hackert, proponiamo in vendita una villa indipendente di ampia metratura in buono stato interno con corte esterna privata, due depositi, a soli 900 metri dal mare.
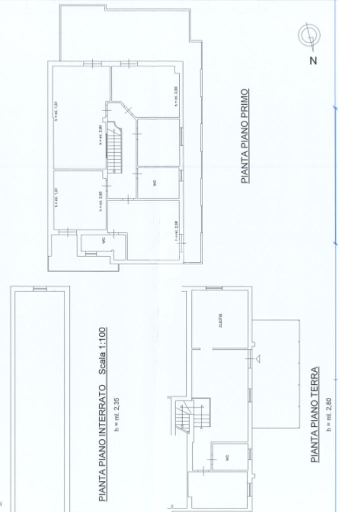
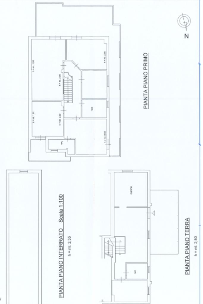
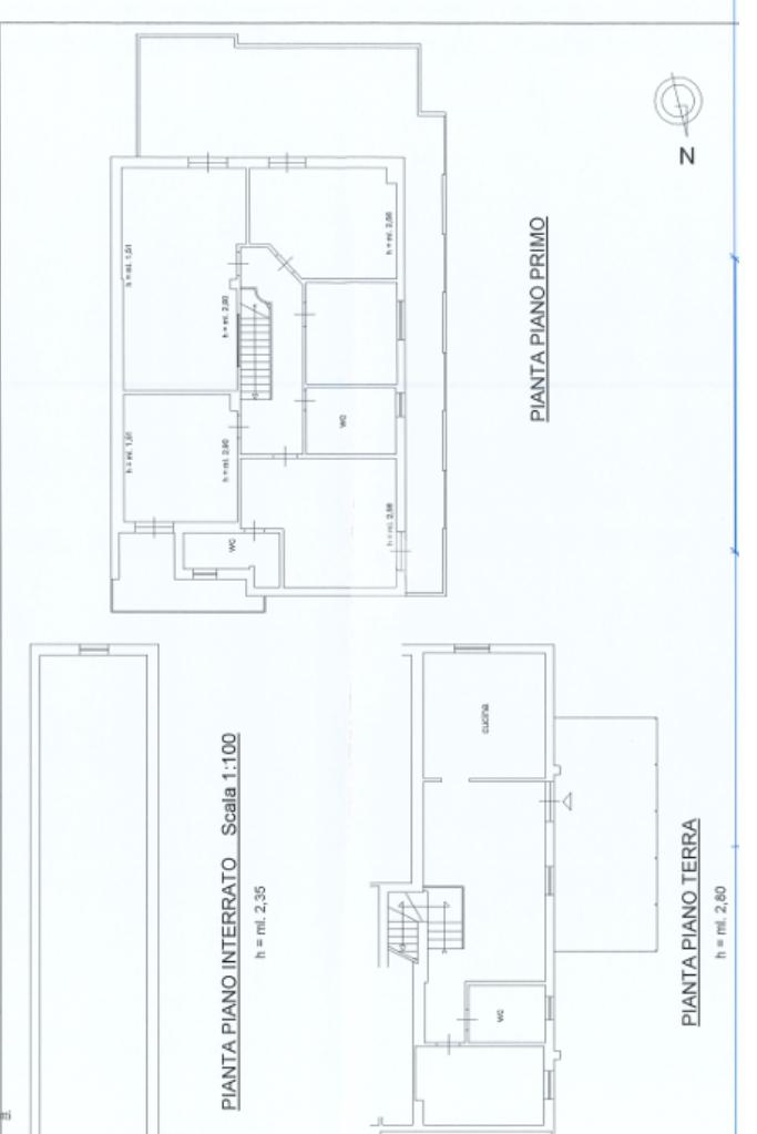
La villa, di 176 mq interni residenziali, si sviluppa su due livelli ed è così composta:
Piano terra, di 65 mq interni calpestibili ed è composto da soggiorno, cucina abitabile con camino a vista, una camera da letto e un pratico bagno di servizio.
Al primo piano, un ampio disimpegno conduce alla zona notte di 110 mq interni calpestabili, dove troviamo cinque camere: due camere matrimoniali con uscita sul terrazzo, due camere di cui una con uscita sul terrazzo e una con finestra, e infine una camera con annesso bagno con box doccia e uscita sul terrazzo.
La villa è dotata di due ampi depositi, uno al piano terra di 42 mq e uno al piano seminterrato di 32 mq, da sfruttare come spazi extra.
Il giardino, suddiviso in parte pavimentata di 260 mq e parte giardinata di 323 mq, offre numerose possibilità di personalizzazione, come l’installazione di un gazebo, e altre soluzioni per creare uno spazio all’aperto.
La proprietà si trova in una posizione strategica, con tutti i principali servizi nelle immediate vicinanze.
DISTANZE PRINCIPALI:
 Supermercato: 443mt
 Mare: 880 mt
 Parco Antonio De Curtis: 900 mt
 Porticciolo romano: 2.5km 
 Centro Commerciale Itaca: 2.2km 
 Centro di Formia: 4.7km
 Gaeta: 6km
Ti interessa visionare l'immobile?